Raum Für Leben

Neue Investitionen planen, alte Geschichten hinter sich lassen, spannende Wege gehen, Fantasien fliegen lassen, Substanz für Neues schaffen...

Die Besten Zahlen Für Sie

Die eigene Immobilie verkaufen? Nicht immer einfach. In jedem Raum stecken Emotionen. Das Finanzherz fragt sich, ob der Gegenwert stimmt...

Raum für Individualisten

Das gewisse Etwas schätzen, Räume kreativ gestalten, Träume leben, sich selbst verwirklichen...

Mit der Zukunft rechnen

Ein Nest für die Familie bauen. Seine Freiheit genießen. Sicherheit spüren. Zukunft und Leben planen...

Blick in meinen Garten

Meditieren, Buddeln, Spielen, Sonnen, Feiern, Plantschen, Grillen, Chillen, Säen, Lesen, Träumen...

Struktur liegt (bei) uns

Voller Energie, mit System, aus Leidenschaft, mit Konzept, über alle Grenzen, von vorne, mit Herz...

Kistenweise Tipps

Voller Vorfreude und ohne Stress umziehen. Wissen, wo seine Lieblingsstücke sind. Sektflasche und Gläser finden und anstoßen. Auf Umzugskartons Pizza essen...

Ich zuerst!

Premiumservice möchten alle. Stecken Sie die Nase zuerst durch die Tür.

Bild
Sprache

Bilder sagen mehr als tausend Worte. Lassen Sie Gefühle überzeugen.

Fallen Sie ruhig mit der Tür ins Haus

Wir l(i)eben den persönlichen Kontakt.

Wir l(i)eben den persönlichen Kontakt t 02521 85 39 800

Suche

Attraktiver Neubau: DHH mit schönem Sonnengarten! Provisionsfrei!

Beschreibung

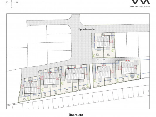
Willkommen Familien. Verwirklichen Sie Ihren Traum vom eigenen Heim in Sassenberg und wählen Ihr Wunschgrundstück nach Ihren persönlichen Vorlieben einfach aus! Angeboten werden 13 Kaufgrundstücke, die mit Doppelhaushälften und Reihenhäuser ohne Keller schlüsselfertig bebaut werden. Die Grundstücksgrößen von ca. 221 m² bis ca. 335 m² verfügen über familienfreundliche Gärten und ansprechende Ausrichtung nach Süden.

Moderne Grundrisse mit offenem Wohn-/Ess-/Küchenbereich und genehmigter Wohnfläche je Haushälfte von ca. 101 m² (kleine Variante mit weißer Putzfassade) und optional 139 m² (große Variante mit Klinkerfassade und Putzelementen) sehen einen klimafreundlichen Neubau mit Effizienzhaus-Stufe 40 vor. Die hochwertige Lärmschutzwand schließt das neue Baugebiet zum Süden hin vorteilhaft ab.

Beispielhaft wird in diesem Exposé die DHH mit der Hausnummer 48 (siehe Lageplan) als kleine Variante über 2 Ebenen (Grundriss ca. 101 m²) beschrieben. Das Grundstück hat eine Fläche von ca. 263 m². Der Kaufpreis für die DHH mit großer Variante über 3 Ebenen (Grundriss ca. 139 m²) ist auf Anfrage erhältlich.

Ausstattung

Im Kaufpreis sind Bauantrag, Architektenleistung, Hausanschlüsse, Gebäudeeinmessung, usw. enthalten. Des Weiteren sind schicke Wandfliesen im Bad und WC mit glänzender Oberfläche in weiß und Bodenfliesen in anthrazit matt inkludiert. Bodenbelege im Wohnbereich und Malerarbeiten sind nicht im Kaufpreis enthalten - wählen Sie komfortabel aus und bezahlen den Aufpreis oder sparen Sie mittels Eigenleistung.

Grundrissänderungen sind nach Absprache möglich.

Die Hauszuwegungen und Terrassen werden mittels anthrazit-farbenen Betonpflastersteinen ca. 20 x 20 cm erstellt, Pkw-Stellplätze mit anthrazit-farbenen, versickerungsfähigen Pflaster ca. 20 x 30 cm.

Jede Haushälfte erhält jeweils eine frostsichere Außenzapfstelle. Die Fenster und die Fenstertüren werden mit Wärmeschutzverglasung verbaut.

Weitere Ausstattungsmerkmale:

+ Fenster mit Dreifachverglasung
+ elektrische Rollläden
+ Fußbodenheizung
+ bodengleich gefliester Duschbereich
+ elegante Sanitärobjekte
+ zusätzlicher Badheizkörper
+ Installation einer Photovoltaik-Anlage
+ 2 Pkw-Stellplätze

Zukunftsorientiertes Wohnen: Zur Sicherstellung der E-Mobilität erhält ein Pkw-Stellplatz eine Vorrüstung für die Installation einer Ladebox - sie ist nicht im Kaufpreis enthalten und bei Bedarf durch den Erwerber auf seine Kosten zu erstellen. Zur Optimierung der Energieverteilung ist ein Lastmanagementsystem vorgesehen.

Auf fossile Brennstoffe zur Beheizung wird bewusst verzichtet, stattdessen wird eine fortschrittliche Luft-Wasser Wärmepumpe installiert. Zur energetischen Unterstützung des Heizsystems wird auf den Dachflächen jeweils eine Photovoltaikanlage angebracht.

Lage

Südlich der Christian-Rath-Straße (genauer Spoedestraße 48 – 72, in Google Maps noch nicht verfügbar), im Geltungsbereich des Bebauungsplanes (B-Plan), erstreckt sich das frische Baugebiet, das für die Errichtung von Wohnhäusern zum Ende 2024 freigegeben wurde. Dieses Gebiet grenzt im weiteren Osten an den Tatenhauser Weg, im Westen an die Schürenerstraße, und bietet durch seine Nähe zur Innenstadt eine attraktive Lage für Eigenheime und Wohnungen. In der näheren Umgebung befinden sich mehrere Kindergärten, Schulen und Freizeitmöglichkeiten wie z. B. ein Sportplatz und Wanderwege – eine attraktive Gegend für junge Familien. Auch die Nahversorgung ist durch naheliegende Supermärkte und Geschäfte sehr gut gewährleistet.

Sassenberg ist eine kleine Stadt im nordrhein-westfälischen Kreis Warendorf. Sie befindet sich etwa 30 Kilometer nordwestlich von Münster und rund 20 Kilometer südwestlich von Hamm und liegt fast gleich weit entfernt von beiden größeren Städten im Münsterland. Hier lebt es sich grün und friedlich. An das regionale Verkehrsnetz ist Sassenberg öffentlich gut angebunden.

Sonstiges

Die Erschließungsarbeiten sind ausgeführt und eine Bebauung kann unmittelbar erfolgen. Sobald die zweite DHH einer Einheit verkauft wurde, kann mit den Bauarbeiten begonnen werden.

Alle Gebäude werden als Effizienzhäuser-40 Standard erstellt. Dabei werden die Vorgaben der KfW-Programme 297/298 (Klimafreundliches Wohngebäude (ohne QNG)), Stand 03/2023, umgesetzt. Eine KfW-Förderung, bis maximal 100.000,00 € als Kredithöchstbetrag, ist aus den Programmen möglich. Sprechen Sie uns gern an.

Finanzierung schon gesichert? Wir planen mit Ihnen gemeinsam Ihren Grundstückskauf und auch Ihre Hausfinanzierung inklusive Fördermittel. Als Franchisepartner der Dr. Klein Privatkunden AG bieten Ihnen unsere zertifizierten Finanzierungsberater maßgeschneiderte Finanzierungslösungen aus einem Angebot von über 400 Bankpartnern. Rufen Sie einfach an und lassen Sie sich zu Ihrem persönlichen Finanzierungsangebot beraten.

Verbraucher­informationen

Die Maklerleistung ist der Nachweis der Gelegenheit zum Abschluss eines Vertrages bzw. Vermittlung eines Vertrages über eine Immobilie gegen die Courtagezahlungspflicht des Kunden/Verkäufers unter Berücksichtigung der gesetzlichen Regelungen. Es besteht ein Widerrufsrecht.

Wecker Immobilien e.K.
Nordstraße 55 | 59269 Beckum
T 02521 85 39 800 | F 02521 85 39 801

kontakt@weckerimmobilien.de

www.weckerimmobilien.de

Öffnungszeiten
Mo–Fr 9:30–12:30 und 13:30–17:30
Gerne können Sie auch einen individuellen Termin mit uns vereinbaren.
Parkplätze gibt es direkt vor der Tür für Sie!

Verantwortlich: Oliver Wecker
Amtsgericht Münster | HRA 10453
Steuer-Nr.: 336/5220/0872
USt.-Ident-Nr.: DE 209094212

Da wir Objektangaben nicht selbst ermitteln, übernehmen wir hierfür keine Gewähr. Dieses Exposé ist nur für Sie persönlich bestimmt. Eine Weitergabe an Dritte ist an unsere ausdrückliche Zustimmung gebunden und unterbindet nicht unseren Provisionsanspruch bei Zustandekommen eines Vertrages. Alle Gespräche sind über unser Büro zu führen. Bei Zuwiderhandlung behalten wir uns Schadenersatz bis zur Höhe der Provisionsansprüche ausdrücklich vor. Zwischenverkauf ist nicht ausgeschlossen.

Details

Objektart
Doppelhaushälfte
Ort
Sassenberg
Nutzungsart
Wohnen
Wohnfläche
101 m²
Grundstücksfläche
263 m²
Zimmeranzahl
4
Schlafzimmer
3
Badezimmer
1
Stellplätze
2
Kaufpreis
500.800 €
verfügbar ab
2027
Objektnr.
202648336DHH48_50

Energieausweis

Karte

Kontakt

Herr Oliver Wecker
E-Mail: oliver.wecker@weckerimmobilien.de
Telefon: 025218539800

Diese Website verwendet Cookies, die zur Funktionsfähigkeit nötig sind. Nach Ihrer Zustimmung nutzen wir außerdem Tracking-Cookies, um Ihr Nutzungsverhalten in anonymisierter Form auszuwerten. Weitere Informationen finden Sie unter Datenschutz. Dort können Sie Ihre Entscheidung jederzeit widerrufen.