Raum Für Leben

Neue Investitionen planen, alte Geschichten hinter sich lassen, spannende Wege gehen, Fantasien fliegen lassen, Substanz für Neues schaffen...

Die Besten Zahlen Für Sie

Die eigene Immobilie verkaufen? Nicht immer einfach. In jedem Raum stecken Emotionen. Das Finanzherz fragt sich, ob der Gegenwert stimmt...

Raum für Individualisten

Das gewisse Etwas schätzen, Räume kreativ gestalten, Träume leben, sich selbst verwirklichen...

Mit der Zukunft rechnen

Ein Nest für die Familie bauen. Seine Freiheit genießen. Sicherheit spüren. Zukunft und Leben planen...

Blick in meinen Garten

Meditieren, Buddeln, Spielen, Sonnen, Feiern, Plantschen, Grillen, Chillen, Säen, Lesen, Träumen...

Struktur liegt (bei) uns

Voller Energie, mit System, aus Leidenschaft, mit Konzept, über alle Grenzen, von vorne, mit Herz...

Kistenweise Tipps

Voller Vorfreude und ohne Stress umziehen. Wissen, wo seine Lieblingsstücke sind. Sektflasche und Gläser finden und anstoßen. Auf Umzugskartons Pizza essen...

Ich zuerst!

Premiumservice möchten alle. Stecken Sie die Nase zuerst durch die Tür.

Bild
Sprache

Bilder sagen mehr als tausend Worte. Lassen Sie Gefühle überzeugen.

Fallen Sie ruhig mit der Tür ins Haus

Wir l(i)eben den persönlichen Kontakt.

Wir l(i)eben den persönlichen Kontakt t 02521 85 39 800

Suche

Neubauprojekt! Hochmodernes Mehrfamilienhaus mit 6 Wohnungen (KfW 40 + QNG)

Beschreibung

In Massivbauweise entstehen 2 nebeneinanderliegende Mehrfamilienhäuser – großzügig geplant - mit jeweils 6 Wohnungen, barrierearm inklusive eigenem Aufzug je Gebäude. Energetisch auf dem neusten Stand und mit solider Klinkerfassade passt sich die besondere Architektur des attraktiven Neubauprojekts harmonisch in das Münsterland ein. Jedes Haus wird auf einem eigenen Flurstück gebaut.

Unter Einhaltung der allgemein anerkannten Regeln der Technik und Baukunst wird die Energieeffizienzklasse KfW 40 mit dem Siegel „QNG (Qualitätsgesicherte Nachhaltige Gebäude)“ erreicht. Die QNG-Bauweise zeichnet sich durch besonders nachhaltige, umweltschonende und ressourcenschonende Bau- und Sanierungsmethoden aus, die den ökologischen Fußabdruck minimieren und gleichzeitig hohe Qualitätsstandards erfüllen.

Top Gelegenheit für Kapitalanleger! Mit der nachhaltigen Bauweise bieten sich attraktive Chancen: Durch die geschickte Kombination der 5 % Sonderabschreibung gemäß § 7b EStG und 5 % degressive Abschreibung nach § 7 Abs. (5a) EStG lassen sich innerhalb der ersten 10 Jahre bis zu 50 % des Gebäudewerts abschreiben. Zusätzlich stehen zinsgünstige KfW-Darlehen in Höhe von 150.000,00 € zur Verfügung, um energieeffiziente Neubauten noch rentabler zu gestalten.

Ob Balkon oder Terrasse einschließlich Gartenanteil mit Sondernutzungsrecht: Alle Freisitze verfügen über eine einmalig schöne Ausrichtung nach Süden. Die tolle Lage begeistert durch Stadtnähe, fußläufige Nahversorgung (Supermärkte, usw.) und gleichzeitige Nähe zur Natur. Beide Häuser erhalten jeweils 9 PKW-Außenstellplätze und einen gesonderten Außenstellplatz für Fahrräder, beides ansprechend und praktisch seitlich von den Bauvorhaben angeordnet.

Ausstattung

Hochwertige Ausstattung und perfekt geschnittene Grundrisse mit Wohnflächen von ca. 71 m² bis ca. 97 m² ermöglichen ideale Wohnkonzepte verteilt auf jeweils zwei, drei oder vier Zimmer. So sind z. B. alle Wohnungen modern mit offenem Küchen-/Ess-/Wohnbereich ausgestattet, besitzen einen Abstellraum und haben ein Badezimmer mit Fenster und ein Gäste WC. Die Grundrissvariante ist für alle Wohnungen im EG und OG möglich. Terrassen der EG-Wohnungen erhalten eine frostsichere Außenzapfstelle. Jeder Wohnung ist ein privater Kellerraum zugehörig und jede Wohnung erhält einen Stellplatz. Drei weitere Stellplätze (zzgl. 9.500,00 €) pro Haus können zusätzlich erworben werden.

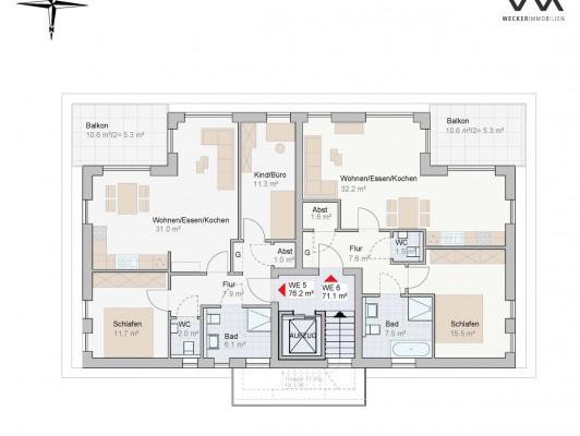
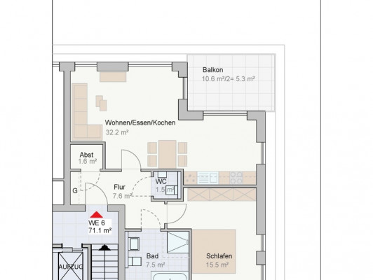
In diesem Exposé ist beispielhaft im Haus 1 die Zweizimmerwohnung Nr. 6 im Dachgeschoss beschrieben (siehe Grundriss Wohnung Nr. 6). Freuen Sie sich auf einen attraktiven Grundriss mit ca. 71,20 m² Wohnfläche inklusive Balkon.

Weitere Ausstattungsmerkmale:

+ elektrische Rollläden
+ Fenster mit Dreifachverglasung
+ Fußbodenheizung
+ Wohnungsinnentüren 2,135 m hoch
+ elegante Sanitärobjekte
+ bodengleich gefliester Duschbereich
+ elektrischer Bad- und Designheizkörper
+ Gegensprechanlage
+ Aufzug (geräuscharme Hydraulik)
+ gemeinsamer Kellerwaschraum
+ Kellerraum Nr. 6
+ Stellplatz Nr. 6 (zzgl. 9.500,00 €)
+ E-Bike Stellplatz Nr. F6

Alle Räume der einzelnen Wohnungen erhalten Vinylbodenbelag, die Böden im (Gäste-)WC und Bad werden gefliest, die Wände ebenfalls teilweise (Wandfliesen, weiß, mit glänzender Oberfläche und Bodenfliesen, anthrazit, mit matter Oberfläche). Malerarbeiten sind inkludiert: Decken und Wände werden mit Malervlies belegt und mit hochwertiger Dispersionsfarbe gestrichen!

Lage

Südlich der Christian-Rath-Straße (genauer Spoedestraße 5 und 7), im Geltungsbereich des Bebauungsplanes (B-Plan), erstreckt sich das frische Baugebiet, das für die Errichtung von Wohnhäusern zum Ende 2024 freigegeben wurde. Dieses Gebiet grenzt im weiteren Osten an den Tatenhauser Weg, im Westen an die Schürenerstraße, und bietet durch seine Nähe zur Innenstadt eine attraktive Lage für Eigenheime und Wohnungen.

In der näheren Umgebung befinden sich mehrere Kindergärten, Schulen und Freizeitmöglichkeiten wie z. B. ein Sportplatz, Freibad und Wanderwege – eine attraktive Gegend nicht nur für junge Familien. Die Nahversorgung ist durch Supermärkte, Bäcker, Post und Geschäfte sehr gut gewährleistet. Sassenberg ist an das Busnetz angeschlossen, innerorts wie auch umliegend. Eine Haltestelle ist in wenigen Minuten zu Fuß erreicht. Der nächste Bahnhof befindet sich in Warendorf, ca. 7 km entfernt. Er wird regelmäßig von Zügen aus Münster, Bielefeld, Gütersloh und Rheda-Wiedenbrück angefahren.

Sassenberg ist eine kleine Stadt im nordrhein-westfälischen Kreis Warendorf. Sie befindet sich etwa 30 Kilometer nordwestlich von Münster und rund 20 Kilometer südwestlich von Hamm und liegt fast gleich weit entfernt von beiden größeren Städten im Münsterland. Hier lebt es sich grün und friedlich. An das regionale Verkehrsnetz ist Sassenberg öffentlich gut angebunden.

Sonstiges

Zukunftsorientiertes Wohnen mittels hoher Energieeffizienz: Die Heizungsanlage wird mit einer modernen Luft-Wasser-Wärmepumpe einschließlich Warmwasserbereitung gemäß EnEV-Nachweis betrieben. Der zusätzlich gewonnene Strom aus der installierten Photovoltaik-Anlage (ebenfalls gemäß EnEV-Nachweis) wird für die Wärmepumpe genutzt. Der Verbrauch von Kalt- und Warmwasser sowie der Heizenergie wird für jede Wohnung verbrauchsorientiert gemessen.

Durch die massive Bauweise und der schallentkoppelten Stahlbetondeckenkonstruktion wird ein Schallschutz oberhalb der gesetzlichen Anforderungen nach DIN 4109 erreicht.

Im freundlich gestalteten Außenbereich werden Zuwegungen mittels anthrazitfarbenen Betonpflastersteinen ausgestattet und im Bereich der Gemeinschafts- und Sondernutzungsflächen wird Mutterboden angefüllt. Die Raseneinsaat und Anpflanzung von pflegeleichten Rotbuchenhecke sind im Leistungsumfang enthalten.

Für jeden Pkw-Stellplatz wird über ein Lastmanagementsystem einschl. elektrischer Zuleitung die Möglichkeit eröffnet, ein E-Fahrzeug zu laden. Die jeweilige system- und versorgerabhängige Lieferung und Montage der Ladebox (Wallbox) am Stellplatz ist nicht mit dem Kaufpreis abgegolten, sie ist bei Bedarf durch die Erwerbenden auf eigene Kosten zu erstellen. Ferner wird je Wohneinheit im Rahmen einer Überdachung ein Fahrradbügel plus Doppelsteckdose für das Laden von E-Bikes installiert.

SORGLOS VERKLEINERN? Der Schritt im Alter noch mal die Immobilie zu wechseln ist gar nicht so groß. Wir erledigen alles Nötige für Sie. Von Bewertung über Verkauf bis Behördengänge. Starten Sie lieber früher als später, so können alle Ihre Wünsche berücksichtigt werden.

Verbraucher­informationen

Die Maklerleistung ist der Nachweis der Gelegenheit zum Abschluss eines Vertrages bzw. Vermittlung eines Vertrages über eine Immobilie gegen die Courtagezahlungspflicht des Kunden/Verkäufers unter Berücksichtigung der gesetzlichen Regelungen. Es besteht ein Widerrufsrecht.

Wecker Immobilien e.K.
Nordstraße 55 | 59269 Beckum
T 02521 85 39 800 | F 02521 85 39 801

kontakt@weckerimmobilien.de

www.weckerimmobilien.de

Öffnungszeiten
Mo–Fr 9:30–12:30 und 13:30–17:30
Gerne können Sie auch einen individuellen Termin mit uns vereinbaren.
Parkplätze gibt es direkt vor der Tür für Sie!

Verantwortlich: Oliver Wecker
Amtsgericht Münster | HRA 10453
Steuer-Nr.: 336/5220/0872
USt.-Ident-Nr.: DE 209094212

Da wir Objektangaben nicht selbst ermitteln, übernehmen wir hierfür keine Gewähr. Dieses Exposé ist nur für Sie persönlich bestimmt. Eine Weitergabe an Dritte ist an unsere ausdrückliche Zustimmung gebunden und unterbindet nicht unseren Provisionsanspruch bei Zustandekommen eines Vertrages. Alle Gespräche sind über unser Büro zu führen. Bei Zuwiderhandlung behalten wir uns Schadenersatz bis zur Höhe der Provisionsansprüche ausdrücklich vor. Zwischenverkauf ist nicht ausgeschlossen.

Details

Objektart
Erdgeschoss-Wohnung
Ort
Sassenberg
Nutzungsart
Wohnen
Wohnfläche
71,2 m²
Baujahr
2026
Zimmeranzahl
2
Schlafzimmer
1
Badezimmer
1
Besonderheiten
Fahrstuhl
Stellplätze
1 (Kaufpreis: 9.500 €)
Kaufpreis
342.000 €
Käufercourtage
2,98% auf den Kaufpreis inkl. gesetzl. MwSt.
verfügbar ab
Herbst 2027
Objektnr.
202648336SPO16

Energieausweis

Art
Bedarfsausweis
Endenergiebedarf
8,40 kWh/(m²*a)
Energie­effizienz­klasse
A+
Energieträger
Luftwp
gültig bis
19.11.2035

Karte

Kontakt

Herr Oliver Wecker
E-Mail: oliver.wecker@weckerimmobilien.de
Telefon: 025218539800

Diese Website verwendet Cookies, die zur Funktionsfähigkeit nötig sind. Nach Ihrer Zustimmung nutzen wir außerdem Tracking-Cookies, um Ihr Nutzungsverhalten in anonymisierter Form auszuwerten. Weitere Informationen finden Sie unter Datenschutz. Dort können Sie Ihre Entscheidung jederzeit widerrufen.