Raum Für Leben

Neue Investitionen planen, alte Geschichten hinter sich lassen, spannende Wege gehen, Fantasien fliegen lassen, Substanz für Neues schaffen...

Die Besten Zahlen Für Sie

Die eigene Immobilie verkaufen? Nicht immer einfach. In jedem Raum stecken Emotionen. Das Finanzherz fragt sich, ob der Gegenwert stimmt...

Raum für Individualisten

Das gewisse Etwas schätzen, Räume kreativ gestalten, Träume leben, sich selbst verwirklichen...

Mit der Zukunft rechnen

Ein Nest für die Familie bauen. Seine Freiheit genießen. Sicherheit spüren. Zukunft und Leben planen...

Blick in meinen Garten

Meditieren, Buddeln, Spielen, Sonnen, Feiern, Plantschen, Grillen, Chillen, Säen, Lesen, Träumen...

Struktur liegt (bei) uns

Voller Energie, mit System, aus Leidenschaft, mit Konzept, über alle Grenzen, von vorne, mit Herz...

Kistenweise Tipps

Voller Vorfreude und ohne Stress umziehen. Wissen, wo seine Lieblingsstücke sind. Sektflasche und Gläser finden und anstoßen. Auf Umzugskartons Pizza essen...

Ich zuerst!

Premiumservice möchten alle. Stecken Sie die Nase zuerst durch die Tür.

Bild
Sprache

Bilder sagen mehr als tausend Worte. Lassen Sie Gefühle überzeugen.

Fallen Sie ruhig mit der Tür ins Haus

Wir l(i)eben den persönlichen Kontakt.

Wir l(i)eben den persönlichen Kontakt t 02521 85 39 800

Suche

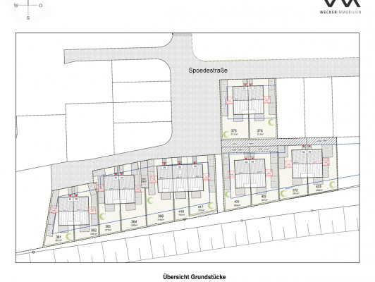
Reihenhausgrundstück mit Planung und Baugenehmigung südlich der Christian-Rath-Straße

Beschreibung

Willkommen Familien. Verwirklichen Sie Ihren Traum vom eigenen Heim in Sassenberg und wählen Ihr Wunschgrundstück nach Ihren persönlichen Vorlieben einfach aus! Angeboten werden 13 Wohnbaugrundstücke, die mit Doppelhaushälften und Reihenhäuser bebaut werden können. Die Grundstücksgrößen von ca. 221 m² bis ca. 355 m² verfügen über familienfreundliche Gärten und schöner Ausrichtung nach Süden. Moderne Grundrisse mit genehmigter Wohnfläche je Haus von ca. 140 m² sehen einen klimafreundlichen Neubau mit Effizienzhaus-Stufe 40 vor. Die hochwertige Lärmschutzwand schließt das neue Baugebiet zum Süden hin vorteilhaft ab.

Beispielhaft wird in diesem Exposé das Grundstück Nr. 417 beschrieben. Das Grundstück hat eine Fläche von ca. 297 m². Weitere Grundstücke sind verfügbar.

Ausstattung

Wohnglück auf zwei Ebenen: Eine zweigeschossige Bauweise ist möglich. Die Geschossflächenzahl (GFZ) liegt bei 0,4. Weitere Angaben entnehmen Sie bitte dem gültigen B-Plan.

Das Grundstück kann individuell, unter Einhaltung des Bebauungsplanes, beplant und bebaut werden. Im Kaufpreis sind die Erschließungskosten der Stadt Sassenberg, anteilige Kosten für die Lärmschutzwand und die Kosten für die Baugenehmigung für eine Doppelhaushälfte bzw. Reihenhaus nach den genehmigten Vorgaben enthalten. Eigene Wünsche können berücksichtigt werden.

Es wird bewusst auf Gas im Baugebiet verzichtet und stattdessen nachhaltige, vorausschauende und energieeffiziente Wärmegewinnungsmethoden wie Luftwärmepumpe, Geothermie, Solarthermie, Holz- Pelletheizung, etc. vorgesehen.

Lage

Südlich der Christian-Rath-Straße (genauer Spoedestraße 48 – 72), im Geltungsbereich des Bebauungsplanes (B-Plan), erstreckt sich das frische Baugebiet, das für die Errichtung von Wohnhäusern zum Ende 2024 freigegeben wurde. Dieses Gebiet grenzt im weiteren Osten an den Tatenhauser Weg, im Westen an die Schürenerstraße, und bietet durch seine Nähe zur Innenstadt eine attraktive Lage für Eigenheime und Wohnungen. In der näheren Umgebung befinden sich mehrere Kindergärten, Schulen und Freizeitmöglichkeiten wie z. B. ein Sportplatz und Wanderwege – eine attraktive Gegend für junge Familien. Auch die Nahversorgung ist durch naheliegende Supermärkte und Geschäfte sehr gut gewährleistet.

Sassenberg ist eine kleine Stadt im nordrhein-westfälischen Kreis Warendorf. Sie befindet sich etwa 30 Kilometer nordwestlich von Münster und rund 20 Kilometer südwestlich von Hamm und liegt fast gleich weit entfernt von beiden größeren Städten im Münsterland. Hier lebt es sich grün und friedlich. An das regionale Verkehrsnetz ist Sassenberg öffentlich gut angebunden.

Sonstiges

Die Erschließungsarbeiten sind abgeschlossen und eine Bebauung kann unmittelbar erfolgen.

Finanzierung schon gesichert? Wir planen mit Ihnen gemeinsam Ihren Grundstückskauf und auch Ihre Hausfinanzierung inklusive Fördermittel. Als Franchisepartner der Dr. Klein Privatkunden AG bieten Ihnen unsere zertifizierten Finanzierungsberater maßgeschneiderte Finanzierungslösungen aus einem Angebot von über 400 Bankpartnern. Rufen Sie einfach an und lassen Sie sich zu Ihrem persönlichen Finanzierungsangebot beraten.

Verbraucher­informationen

Die Maklerleistung ist der Nachweis der Gelegenheit zum Abschluss eines Vertrages bzw. Vermittlung eines Vertrages über eine Immobilie gegen die Courtagezahlungspflicht des Kunden/Verkäufers unter Berücksichtigung der gesetzlichen Regelungen. Es besteht ein Widerrufsrecht.

Wecker Immobilien e.K.
Nordstraße 55 | 59269 Beckum
T 02521 85 39 800 | F 02521 85 39 801

kontakt@weckerimmobilien.de

www.weckerimmobilien.de

Öffnungszeiten
Mo–Fr 9:30–12:30 und 13:30–17:30
Gerne können Sie auch einen individuellen Termin mit uns vereinbaren.
Parkplätze gibt es direkt vor der Tür für Sie!

Verantwortlich: Oliver Wecker
Amtsgericht Münster | HRA 10453
Steuer-Nr.: 336/5220/0872
USt.-Ident-Nr.: DE 209094212

Da wir Objektangaben nicht selbst ermitteln, übernehmen wir hierfür keine Gewähr. Dieses Exposé ist nur für Sie persönlich bestimmt. Eine Weitergabe an Dritte ist an unsere ausdrückliche Zustimmung gebunden und unterbindet nicht unseren Provisionsanspruch bei Zustandekommen eines Vertrages. Alle Gespräche sind über unser Büro zu führen. Bei Zuwiderhandlung behalten wir uns Schadenersatz bis zur Höhe der Provisionsansprüche ausdrücklich vor. Zwischenverkauf ist nicht ausgeschlossen.

Details

Objektart
Wohngrundstück
Ort
Sassenberg
Nutzungsart
Wohnen
Grundstücksfläche
297 m²
Kaufpreis
118.800 €
Käufercourtage
3,57% auf den Kaufpreis inkl. gesetzl. MwSt.
verfügbar ab
sofort
Objektnr.
202548336417

Karte

Kontakt

Herr Oliver Wecker
E-Mail: oliver.wecker@weckerimmobilien.de
Telefon: 02521 85 39 800

Diese Website verwendet Cookies, die zur Funktionsfähigkeit nötig sind. Nach Ihrer Zustimmung nutzen wir außerdem Tracking-Cookies, um Ihr Nutzungsverhalten in anonymisierter Form auszuwerten. Weitere Informationen finden Sie unter Datenschutz. Dort können Sie Ihre Entscheidung jederzeit widerrufen.