Raum Für Leben

Neue Investitionen planen, alte Geschichten hinter sich lassen, spannende Wege gehen, Fantasien fliegen lassen, Substanz für Neues schaffen...

Die Besten Zahlen Für Sie

Die eigene Immobilie verkaufen? Nicht immer einfach. In jedem Raum stecken Emotionen. Das Finanzherz fragt sich, ob der Gegenwert stimmt...

Raum für Individualisten

Das gewisse Etwas schätzen, Räume kreativ gestalten, Träume leben, sich selbst verwirklichen...

Mit der Zukunft rechnen

Ein Nest für die Familie bauen. Seine Freiheit genießen. Sicherheit spüren. Zukunft und Leben planen...

Blick in meinen Garten

Meditieren, Buddeln, Spielen, Sonnen, Feiern, Plantschen, Grillen, Chillen, Säen, Lesen, Träumen...

Struktur liegt (bei) uns

Voller Energie, mit System, aus Leidenschaft, mit Konzept, über alle Grenzen, von vorne, mit Herz...

Kistenweise Tipps

Voller Vorfreude und ohne Stress umziehen. Wissen, wo seine Lieblingsstücke sind. Sektflasche und Gläser finden und anstoßen. Auf Umzugskartons Pizza essen...

Ich zuerst!

Premiumservice möchten alle. Stecken Sie die Nase zuerst durch die Tür.

Bild
Sprache

Bilder sagen mehr als tausend Worte. Lassen Sie Gefühle überzeugen.

Fallen Sie ruhig mit der Tür ins Haus

Wir l(i)eben den persönlichen Kontakt.

Wir l(i)eben den persönlichen Kontakt t 02521 85 39 800

Suche

Neubauprojekt! Hochmodernes Mehrfamilienhaus mit 6 Wohnungen (KfW 40 + QNG)

Beschreibung

In Massivbauweise entstehen 2 nebeneinanderliegende Mehrfamilienhäuser – großzügig geplant - mit jeweils 6 Wohnungen, barrierearm inklusive eigenem Aufzug je Gebäude. Energetisch auf dem neusten Stand und mit solider Klinkerfassade passt sich die besondere Architektur des attraktiven Neubauprojekts harmonisch in das Münsterland ein. Jedes Haus wird auf einem eigenen Flurstück gebaut.

Unter Einhaltung der allgemein anerkannten Regeln der Technik und Baukunst wird die Energieeffizienzklasse KfW 40 mit dem Siegel „QNG (Qualitätsgesicherte Nachhaltige Gebäude)“ erreicht. Die QNG-Bauweise zeichnet sich durch besonders nachhaltige, umweltschonende und ressourcenschonende Bau- und Sanierungsmethoden aus, die den ökologischen Fußabdruck minimieren und gleichzeitig hohe Qualitätsstandards erfüllen.

Top Gelegenheit für Kapitalanleger! Mit der neuen Bauweise bieten sich attraktive Chancen: Durch die geschickte Kombination der 5 % Sonderabschreibung gemäß § 7b EStG und 5 % degressive Abschreibung nach § 7 Abs. 5a EstG lassen sich innerhalb der ersten vier Jahre bis zu 38,5 % des Gebäudewerts abschreiben. Zusätzlich stehen zinsgünstige KfW-Darlehen Programm 297 zur Verfügung, um energieeffiziente Neubauten noch rentabler zu gestalten.

Ob Balkon oder Terrasse einschließlich Gartenanteil mit Sondernutzungsrecht: Alle Freisitze verfügen über eine einmalig schöne Ausrichtung nach Süden. Die tolle Lage begeistert durch Stadtnähe, fußläufige Nahversorgung (Supermärkte, usw.) und gleichzeitige Nähe zur Natur. Beide Häuser erhalten jeweils 9 PKW-Außenstellplätze und einen gesonderten Außenstellplatz für Fahrräder, beides ansprechend und praktisch seitlich von den Bauvorhaben angeordnet.

Reservierte Einheiten:

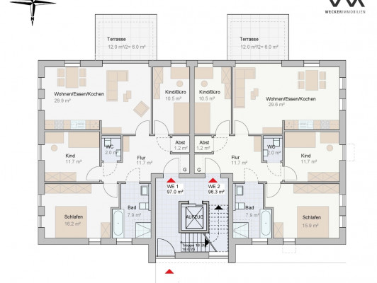
Erdgeschoss: 4 Zimmer, 97,00 m²
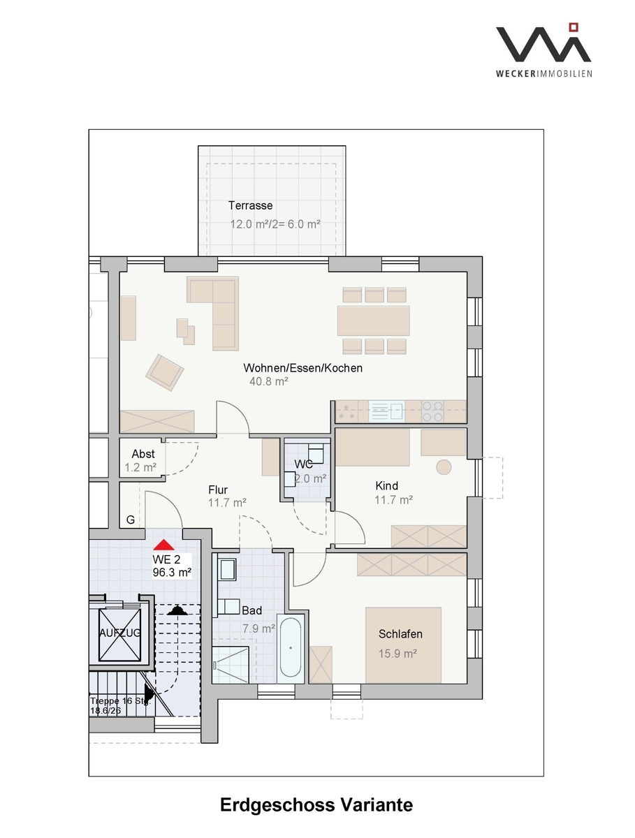
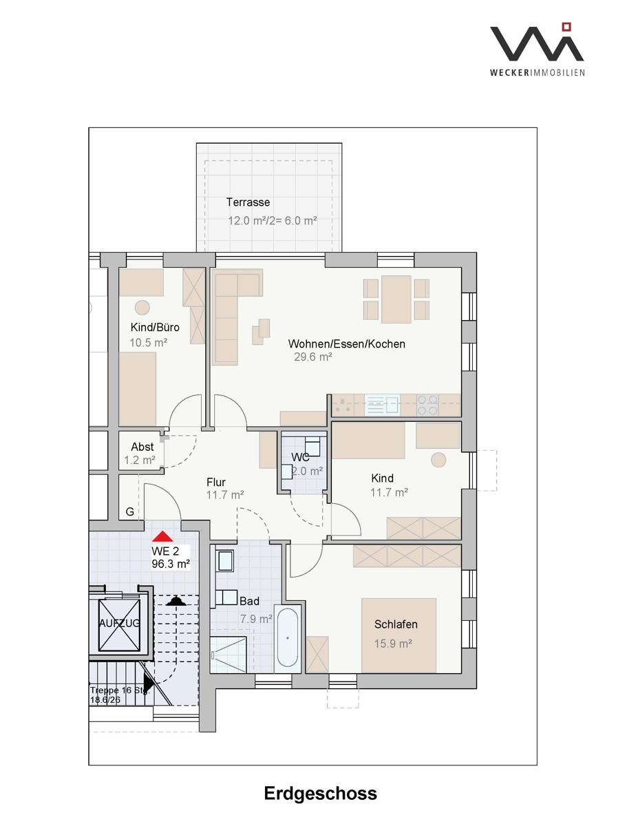
Erdgeschoss: 4 Zimmer, 96,30 m²
Obergeschoss: 4 Zimmer, 95,60 m²
Obergeschoss: 4 Zimmer, 95,60 m²
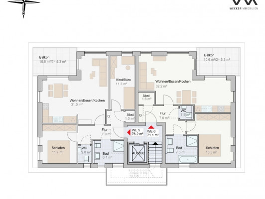
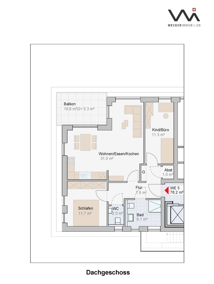
Dachgeschoss: 3 Zimmer, 76,30 m²
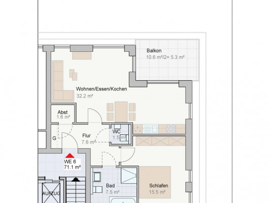
Dachgeschoss: 2 Zimmer, 71,20 m²

Ausstattung

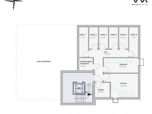
In diesem Exposé ist beispielhaft das Haus 1 beschrieben, Spoedestraße 5. Es umfasst 6 Einheiten mit jeweils 2 Wohnungen im Erdgeschoss, Obergeschoss und im Dachgeschoss. Jeder Wohnung ist ein privater Kellerraum zugehörig. Die gesamte Wohnfläche beträgt ca. 532 m² bei einer Grundstücksgröße von 809 m².

Hochwertige Ausstattung und perfekt geschnittene Grundrisse mit Wohnflächen von ca. 71 m² bis ca. 97 m² ermöglichen ideale Wohnkonzepte verteilt auf jeweils zwei, drei oder vier Zimmer. So sind z. B. alle Wohnungen modern mit offenem Küchen-/Ess-/Wohnbereich ausgestattet, besitzen einen Abstellraum und haben ein Badezimmer mit Fenster. Die Grundrissvariante ist für alle Wohnungen im EG und OG möglich. Terrassen der EG-Wohnungen erhalten eine frostsichere Außenzapfstelle.

Weitere Ausstattungsmerkmale:

+ elektrische Rollläden
+ Fenster mit Dreifachverglasung
+ Fußbodenheizung
+ Wohnungsinnentüren 2,135 m hoch
+ elegante Sanitärobjekte
+ bodengleich gefliester Duschbereich
+ elektrischer Bad- und Designheizkörper
+ Gegensprechanlage
+ Aufzug (geräuscharme Hydraulik)
+ gemeinsamer Kellerwaschraum

Alle Räume der einzelnen Wohnungen erhalten Vinylbodenbelag, die Böden im (Gäste-)WC und Bad werden gefliest, die Wände ebenfalls teilweise (Wandfliesen, weiß, mit glänzender Oberfläche und Bodenfliesen, anthrazit, mit matter Oberfläche). Malerarbeiten sind inkludiert: Decken und Wände werden mit Malervlies belegt und mit hochwertiger Dispersionsfarbe gestrichen!

Lage

Südlich der Christian-Rath-Straße (genauer Spoedestraße 5 und 7), im Geltungsbereich des Bebauungsplanes (B-Plan), erstreckt sich das frische Baugebiet, das für die Errichtung von Wohnhäusern zum Ende 2024 freigegeben wurde. Dieses Gebiet grenzt im weiteren Osten an den Tatenhauser Weg, im Westen an die Schürenerstraße, und bietet durch seine Nähe zur Innenstadt eine attraktive Lage für Eigenheime und Wohnungen.

In der näheren Umgebung befinden sich mehrere Kindergärten, Schulen und Freizeitmöglichkeiten wie z. B. ein Sportplatz, Freibad und Wanderwege – eine attraktive Gegend nicht nur für junge Familien. Die Nahversorgung ist durch Supermärkte, Bäcker, Post und Geschäfte sehr gut gewährleistet. Sassenberg ist an das Busnetz angeschlossen, innerorts wie auch umliegend. Eine Haltestelle ist in wenigen Minuten zu Fuß erreicht. Der nächste Bahnhof befindet sich in Warendorf, ca. 7 km entfernt. Er wird regelmäßig von Zügen aus Münster, Bielefeld, Gütersloh und Rheda-Wiedenbrück angefahren.

Sassenberg ist eine kleine Stadt im nordrhein-westfälischen Kreis Warendorf. Sie befindet sich etwa 30 Kilometer nordwestlich von Münster und rund 20 Kilometer südwestlich von Hamm und liegt fast gleich weit entfernt von beiden größeren Städten im Münsterland. Hier lebt es sich grün und friedlich. An das regionale Verkehrsnetz ist Sassenberg öffentlich gut angebunden.

Sonstiges

Zukunftsorientiertes Wohnen mittels hoher Energieeffizienz: Die Heizungsanlage wird mit einer modernen Luft-Wasser-Wärmepumpe einschließlich Warmwasserbereitung gemäß EnEV-Nachweis betrieben. Der zusätzlich gewonnene Strom aus der installierten Photovoltaik-Anlage (ebenfalls gemäß EnEV-Nachweis) wird für die Wärmepumpe genutzt. Der Verbrauch von Kalt- und Warmwasser sowie der Heizenergie wird für jede Wohnung verbrauchsorientiert gemessen.

Durch die massive Bauweise und der schallentkoppelten Stahlbetondeckenkonstruktion wird ein Schallschutz oberhalb der gesetzlichen Anforderungen nach DIN 4109 erreicht.

Im freundlich gestalteten Außenbereich werden Zuwegungen mittels anthrazitfarbenen Betonpflastersteinen ausgestattet und im Bereich der Gemeinschafts- und Sondernutzungsflächen wird Mutterboden angefüllt. Die Raseneinsaat und Anpflanzung von pflegeleichten Rotbuchenhecke sind im Leistungsumfang enthalten.

Für jeden Pkw-Stellplatz wird über ein Lastmanagementsystem einschl. elektrischer Zuleitung die Möglichkeit eröffnet, ein E-Fahrzeug zu laden. Die jeweilige system- und versorgerabhängige Lieferung und Montage der Ladebox (Wallbox) am Stellplatz ist nicht mit dem Kaufpreis abgegolten, sie ist bei Bedarf durch die Erwerbenden auf eigene Kosten zu erstellen. Ferner wird je Wohneinheit im Rahmen einer Überdachung ein Fahrradbügel plus Doppelsteckdose für das Laden von E-Bikes installiert.

Verbraucher­informationen

Die Maklerleistung ist der Nachweis der Gelegenheit zum Abschluss eines Vertrages bzw. Vermittlung eines Vertrages über eine Immobilie gegen die Courtagezahlungspflicht des Kunden/Verkäufers unter Berücksichtigung der gesetzlichen Regelungen. Es besteht ein Widerrufsrecht.

Wecker Immobilien e.K.
Nordstraße 55 | 59269 Beckum
T 02521 85 39 800 | F 02521 85 39 801

kontakt@weckerimmobilien.de

www.weckerimmobilien.de

Öffnungszeiten
Mo–Fr 9:30–12:30 und 13:30–17:30
Gerne können Sie auch einen individuellen Termin mit uns vereinbaren.
Parkplätze gibt es direkt vor der Tür für Sie!

Verantwortlich: Oliver Wecker
Amtsgericht Münster | HRA 10453
Steuer-Nr.: 336/5220/0872
USt.-Ident-Nr.: DE 209094212

Da wir Objektangaben nicht selbst ermitteln, übernehmen wir hierfür keine Gewähr. Dieses Exposé ist nur für Sie persönlich bestimmt. Eine Weitergabe an Dritte ist an unsere ausdrückliche Zustimmung gebunden und unterbindet nicht unseren Provisionsanspruch bei Zustandekommen eines Vertrages. Alle Gespräche sind über unser Büro zu führen. Bei Zuwiderhandlung behalten wir uns Schadenersatz bis zur Höhe der Provisionsansprüche ausdrücklich vor. Zwischenverkauf ist nicht ausgeschlossen.

Details

Objektart
Mehrfamilienhaus
Ort
Sassenberg
Nutzungsart
Wohnen
Wohnfläche
532 m²
Nutzfläche
92,5 m²
Grundstücksfläche
809 m²
Baujahr
2026
Stellplätze
9 (Kaufpreis: je 8.500 €)
Kaufpreis
2.474.300 €
Käufercourtage
3,57% auf den Kaufpreis inkl. gesetzl. MwSt.
Objektnr.
202548336MFH1

Energieausweis

Art
Bedarfsausweis
Endenergiebedarf
8,40 kWh/(m²*a)
Energie­effizienz­klasse
A+
Energieträger
Luftwp
gültig bis
19.11.2035

Karte

Kontakt

Herr Oliver Wecker
E-Mail: oliver.wecker@weckerimmobilien.de
Telefon: 025218539800

Diese Website verwendet Cookies, die zur Funktionsfähigkeit nötig sind. Nach Ihrer Zustimmung nutzen wir außerdem Tracking-Cookies, um Ihr Nutzungsverhalten in anonymisierter Form auszuwerten. Weitere Informationen finden Sie unter Datenschutz. Dort können Sie Ihre Entscheidung jederzeit widerrufen.